Villa Eder-Hederus

Juryns motivering

Vacker och välstuderad helhet där det gamla huset fått en ny kompis och båda har fått samma gråa kulör. Den nya volymen är känsligt infogad på tomten och det råder en harmonisk balans mellan gammalt och nytt där kontrasterna i uttryck mellan de två byggnaderna tillsammans bildar en större helhet. Fasaderna kan ge associationer till sommar­stugor från 50-talet vilket bidrar till det lätta och nätta uttrycket och minskar skalan på den nya volymen. Användningen av trä är mångfacetterad och ibland överraskande. En sofistikerad hushållning med uttrycksmedel, rum, ljus, material, volymer och ytor. Interiört kontrasterar exponerat massiv­- trä mot mörka mattor och gråa tak. Flytande rumssamband i tre dimensioner. Ett hem helt kongenialt med platsen och ett förhöjt vardagsliv.

Arkitekternas beskrivning

Vi köpte 2005 en vacker tomt med ett förfallet torp från 1850. Torpet renoverades och vi flyttade in. Huset ligger i Kummelnäs i Nacka och är ett av de äldsta i området. Tomtens form och torpets placering förhåller sig till den gamla landsvägssträckningen som letat sig fram vid foten av en slänt och mellan stora ekar.

Torpet är byggt av liggtimmer och ramverk med spånfyllda fack på en rejäl stensockel. Fasaden som 1960 klätts med masonit har fått ny locklistpanel och gamla, nya och nygamla fönster och fasaddetaljer är målade med en sammanhållande grå linoljefärg.

Byggnaden har upplevt många åldrar och den senaste renoveringen och ombyggnaden är inget restaureringsprojekt. Detaljering, teknik och utförande har anpassats till ekonomi, vilja och behov.

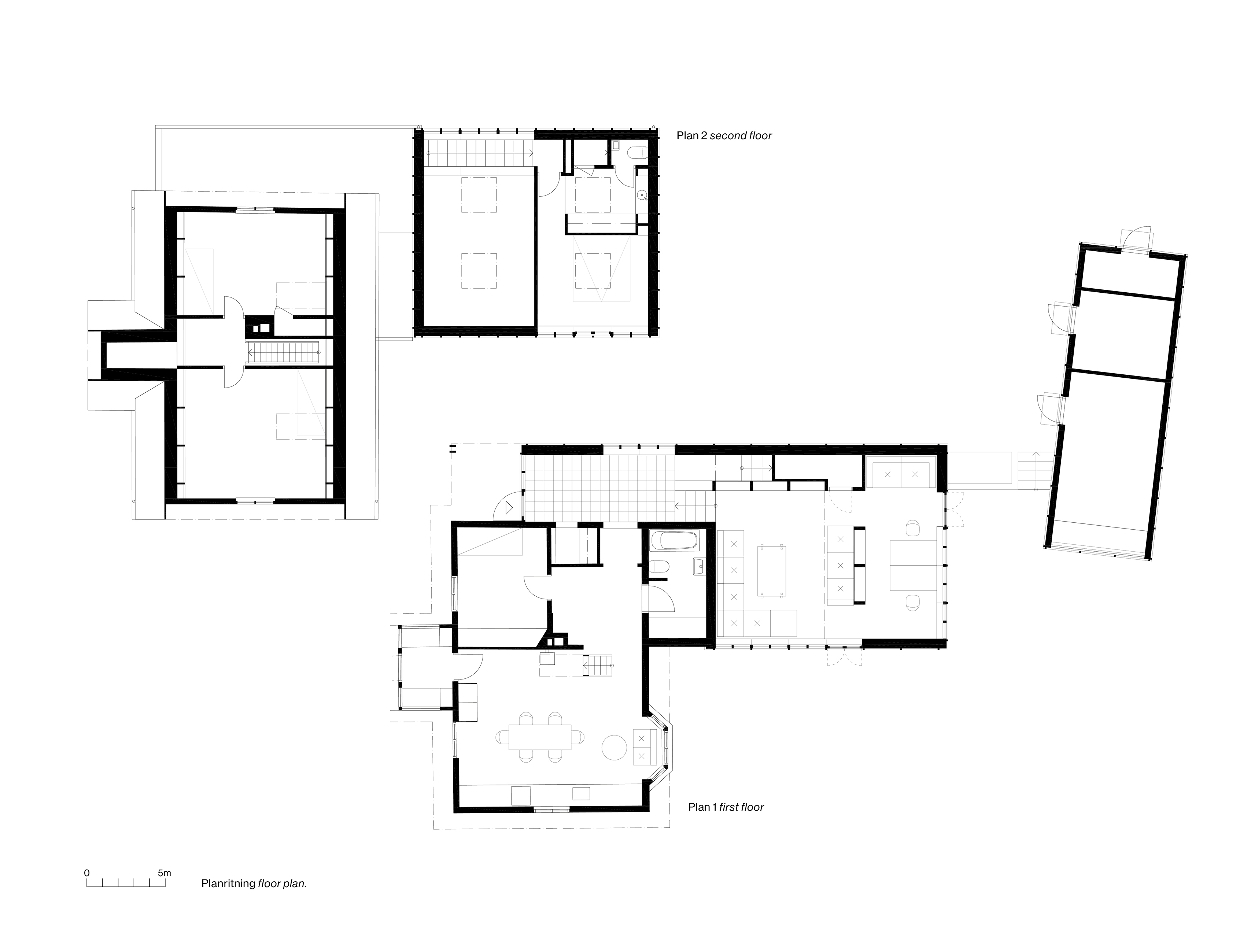
Några år senare gjorde en ny detaljplan det möjligt att bygga till huset. Tillbyggnaden klamrar runt torpet i ett hörn för att maximalt framhäva den gamla huskroppens utsökta placering på tomten och typiska takform. Entrén har flyttats till den nya delen som ligger i den gamla landsvägens sträckning. Entrérummet är idag husets nav med kök i den gamla delen och vardagsrum i den nya. Vardagsrummet är sänkt för att landa i trädgården. Trappor till husdelarnas respektive övervåningar leder till sovrum.

Den nya huskroppen, den gamla och uthuset bildar tillsammans flera trädgårdsrum – entréplats och bakgård.

Nybyggnaden är konstruerad av massiva träelement av gran. Insidans väggar är lämnade obehandlade. Fönster och dörrar av furu med fönsterbänkar av marmor. Golvet är belagt med marmor och heltäckningsmatta av ull. Innertaket är mörkt grå MDF.

Ytterväggsskivorna av massivträ är isolerade med skivor av träfiber. Hela utsidan är målad i grå linoljefärg. Nybyggnadens fasaddetaljering anknyter till ursprungsbyggnadens locklistpanel men har utförts med skivor av plywood och listverk med en ny rytm.

Bli inspirerad och lär dig mer om trä

Anmäl dig här för att få information om publikationer, seminarier och Svenskt Träs nyhetsbrev Trä.

Anmäl dig för att få inspiration