Labyrintiskt, prÄngigt och nordiskt

Villa Moelven i Älgö, Sverige av Widjedal Racki

Lekfullheten och den arkitektoniska experimentlustan skapar ett nytt möte. Besökarna blir till barn igen nÀr de möter glÀdjen och humorn i den ovÀntade arkitekturen. VÀlkommen till den okonventionella labyrinten Villa Moelven.

ETT DRAMATISKT SAMTAL förĂ€ndrade livssituationen för Klas och Astrid Holm nĂ€r de erbjöds köpa en tomt pĂ„ Älgö utanför Stockholm. PĂ„ tomten stod ett gammalt ruckel.

– Huset var sĂ„ otĂ€tt att vi kĂ€nde blĂ„sten i hĂ„ret nĂ€r vi lĂ„g och sov, berĂ€ttar Klas Holm.

Under ett Ärs tid bodde hela familjen i det gamla huset. Under tiden kunde de bo in sig pÄ tomten samtidigt som de skissade pÄ sitt drömboende. NÄgot de uppmanar alla att göra:

– Fundera och lĂ„t processen ta tid sĂ„ du verkligen hittar lösningarna som du vill leva med, tipsar Astrid Holm.

Nu stÄr Àntligen Villa Moelven klar med en fantastisk vy över Erstaviken.

– NĂ€r vi hade bestĂ€mt oss för att bygga ett trĂ€hus kontaktade jag Moelven och frĂ„gade om de ville vara med. Det skulle bli ett hus sĂ„ nĂ€ra 100 procent i trĂ€ som möjligt, och det skulle bli spektakulĂ€rt. De hade det sortimentet jag ville ha, bĂ„de limtrĂ€ och annat virke. De satt inne med kunskapen och i gengĂ€ld kunde jag sprida information och inspiration om trĂ€byggande, sĂ€ger Klas Holm.

Redan frÄn början visste paret att de ville jobba med arkitektstudio Widjedal Racki.

– UpplevelsemĂ€ssigt Ă€r det ett vĂ€ldigt speciellt hus dĂ€r bestĂ€llarna vĂ„gat bejaka vilka de Ă€r. Gör man nĂ„got med full övertygelse blir det bĂ€ttre. Det som skapas blir pĂ„ riktigt och unikt, sĂ€ger HĂ„kan Widjedal.

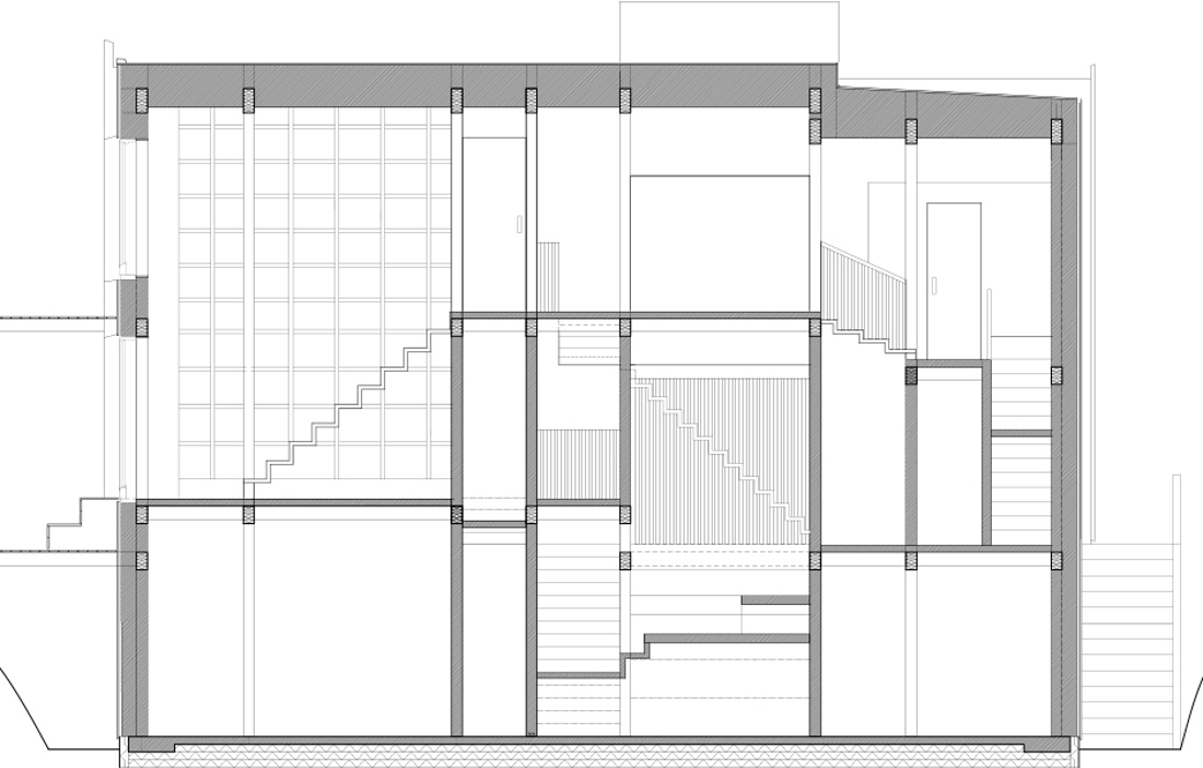
HĂ„kan Widjedal och Ola Keijer Ă„terkommer ofta till bestĂ€llarnas ledord – labyrintiskt, trĂ„ngt, prĂ„ngigt, tropiskt och nordiskt. Temat för huset blev att maximera upplevelsen. Den italienske 1700-tals konstnĂ€ren och arkitekten Giovanni Battista Piranesi var en sjĂ€lvklar förebild. Piranesi Ă€r bland annat kĂ€nd för att ha ritat stora fĂ€ngelser och kyrkan Santa Maria del Priorato i Rom i Italien.

ARKITEKTERNA VILLE UNDERSÖKA vad som hĂ€nder nĂ€r man slĂ„r sönder de konvention­ella rummen. Hur hanterar man det som blir kvar? Om man suddar ut grĂ€nserna sĂ„ flyter byggnad, rum och inredning ihop. Samtidigt ville de förankra lösningen i tomten med sina mĂ„nga nivĂ„er.

– Topografin pĂ„ tomten bestod av mĂ„nga nivĂ„er och vi bestĂ€mde oss för att anamma det och skapa mĂ„nga nivĂ„er Ă€ven interiört, berĂ€ttar Klas Holm.

– Arkitekterna fick gĂ„ tillbaka flera gĂ„nger eftersom det skulle bli ett spektakulĂ€rt projekt, det skulle inte bara vara snyggt. Allting skulle dras till sin spets. Det rĂ€cker inte med tvĂ„ trappor – vi ritar Ă„tta. Det rĂ€cker inte med tre nivĂ„er – vi ritar 16. Trots det Ă€r det inte ett galet hus, fortsĂ€tter han.

Familjen Holm ville bygga med nordiska trÀslag. Valet föll pÄ limtrÀ i gran, vÀrme­behandlad furu i fasad och innertak, furu­plywood och massivgolv i furu.

– Det skulle kĂ€nnas som om vi hĂ€mtat materialen frĂ„n baksidan av huset, sĂ€ger Klas Holm. Jag ville göra ett smart hus som med lite extra tanke skulle bli ett helt ekologiskt hus som Ă€r effektivt energimĂ€ssigt.

LimtrÀ Àr en vÀldigt markant del av upp­levelsen av huset dÄ det Àr konstruerat med en synlig stomme. Varenda bjÀlke, varenda sekundÀr Àr synlig. Samtidigt förstÀrker stommen den labyrintlika kÀnslan som skapar rum i rummen och framhÀver funktioner, till exempel definierar köket. Den exponerade stommen skapar Àven stÀmning och skÀnker vÀrme i huset.

Johan ÅhlĂ©n, vd pĂ„ Moelven Töreboda och ansvarig för stomleveransen, tycker att det var otroligt spĂ€nnande att fĂ„ möjlighet att testa en stor variation av produkter i nya spĂ€nnande anvĂ€ndningsomrĂ„den.

– NĂ€r en eldsjĂ€l som Klas Holm kommer ut med en bild av vad som Ă€r möjligt att Ă„stadkomma med trĂ€ sĂ„ gynnar det sĂ„ klart vĂ„ra produkter. Vi tror att en sĂ„dan exponering bidrar till ökat anvĂ€ndande av trĂ€, sĂ€ger Johan ÅhlĂ©n.

Moelven Törebodas lösning för pelarna med en förmonterad gÀngstav gjorde att det bara var att stÀlla ner dem i de precisionsborrade hÄlen i grundplattan. En oljehÀrdad masonitplatta i botten av pelarna stoppar eventuell fuktvandring frÄn bottenplattan.

– Det har varit vĂ€ldigt givande att bistĂ„ med konstruktionssupport och tekniska lösningar till det hĂ€r bygget. Hela huset Ă€r skapat med miljöval som Ă€r vĂ€ldigt intressanta, sĂ€ger Johan ÅhlĂ©n.

FrĂ„n början var det tĂ€nkt att pelare och bjĂ€lkar skulle ha CNC-frĂ€sta dolda infĂ€stningar och tappar. Efter diskussion med Moelven Töreboda föll slutligen valet pĂ„ en lösning med specialskruvar frĂ„n SFS Intec som skapade en smidig och elegant lösning för att skruva ihop limtrĂ€delarna. För det behövde arkitekterna rita sektioner för alla möten pĂ„ stommen.

– Det Ă€r som en stĂ„lkonstruktion, men dĂ€r vi istĂ€llet för att svetsa ihop stĂ„lbalkar, skruvat ihop limtrĂ€reglar. Det öppnar för helt nya möjligheter med trĂ€byggande, sĂ€ger HĂ„kan Widjedal.

KOMPLEXITETEN I KONSTRUKTIONEN gjorde dock att det inte gick att rita upp eller ens lösa alla detaljer. Till stor hjĂ€lp var alla de 3D-ritningar och modeller som Ola Keijer pĂ„ arkitektfirman tog fram. De blev handfasta redskap nĂ€r arkitekt, byggherre och snickare pĂ„ plats diskuterade hur olika lösningar skulle utföras.

– Vi har tillsammans löst alla möten pĂ„ plats. Snickrat upp en list och funderat pĂ„ hur det ser ut, berĂ€ttar Klas Holm.

En utmaning blev att hitta sĂ„ bra lösningar som möjligt till resterande delar av huset. Grunden Ă€r en gjuten platta med L-element i frigolit. Till skillnad frĂ„n vanliga frigolitelement anvĂ€nds hĂ€r en frigolit som Ă€r blandad med grafit. Det gör att trögheten ökar och att vĂ€rmelĂ€ckaget tack vare det kan minskas med 30–35 procent jĂ€mfört med en vanlig grund.

De 350 millimeter tjocka vÀggarna som tack vare den invÀndiga stommen enbart agerar som ett skal byggdes av lÀttbalkar, osb-skivor med tunna reglar pÄ, vilket i stort sett har eliminerat köldbryggor. VÀggarna Àr fyllda med en cellulosaisolering bestÄende av Ätervunnet tidningspapper. Det tog endast tvÄ dagar att sprutisolera det 350 kvadrat­meter stora huset.

InvÀndigt anvÀnds en diffusionsöppen Ängbroms och under fasadpanelen en diffusionsöppen vindduk. De fungerar som ett goretexmembran, fukten transporteras ut ur huset men ingen fukt kommer in. En diffusionsöppen trÀkonstruktion med cellulosaisoleringen strÀvar efter att utjÀmna luftfuktigheten mellan utomhusluften och inomhusluften. I praktiken strÀvar huset mot en relativ fuktkvot pÄ 50 procent, Äret om.

Huset vĂ€rms upp med solpaneler som levererar allt varmvatten – tappvatten, golvvĂ€rme och pool – under sex mĂ„nader. Övriga delar av Ă„ret kompletteras systemet med bergvĂ€rme. Till- och frĂ„nluft kontrolleras av ett FTX-system. Av en slump placerades insuget under altanen pĂ„ norrsidan av huset vilket gör att Ă€ven varma sommardagar levererar systemet sval luft utan att behöva kyla den.

Alla bjÀlklag Àr stegljudsisolerade, men annars har inga akustiska ÄtgÀrder utförts.

Det Àr inte optimalt, överhörningen Àr uppenbar, men det finns sÄ mÄnga hörn och vrÄr att det inte blir ett problem mellan rummen.

– Vill man vara privat fĂ„r man söka sig lĂ€ngre bort i labyrinten, sĂ€ger HĂ„kan Widjedal.

ÄVEN TAKHÖJDERNA VARIERAR kraftigt i huset, frĂ„n över fem meter i hallen till det lĂ€gsta utrymmet – ett 600 millimeter högt gömt rum i en av barnkammarna. Köket Ă€r knappt tvĂ„ meter högt vilket var en utmaning dĂ„ Klas Holm Ă€r 190 centimeter lĂ„ng. Samtidigt öppnar köket upp och ut i matsal och allrum sĂ„ huset kĂ€nns aldrig instĂ€ngt.

– NivĂ„skillnaderna skapar onödigt mĂ„nga trappor; de bidrar till labyrintkĂ€nslan, den arkitektoniska upplevelsen och Ă€ven den rumsliga dynamiken. De mĂ„nga trapporna Ă€r viktiga för att skapa upplevelsen och man har alltid alternativa vĂ€gar att vĂ€lja, poĂ€ngterar HĂ„kan Widjedal.

Innan vi skiljs Ät berÀttar Klas Holm att huset gör intryck:

– Jag ser pĂ„ de som besöker huset att de vill gĂ„ hem och bygga ett eget trĂ€hus.

Text David Valldeby

LĂ€s de senaste artiklarna

Bli inspirerad och lär dig mer om trä

Anmäl dig här för att få information om publikationer, seminarier och Svenskt Träs nyhetsbrev Trä.

Anmäl dig för att få inspiration