Arkitektonisk frihet på Billingens sluttningar

Frostaliden i Skövde, Sverige av White arkitekter

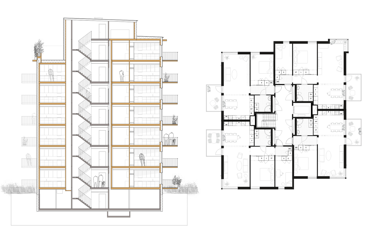
Frostaliden i norra Skövde är en stadsdel helt av trä. Här står bland annat två åttavåningshus insvepta i ett lapptäcke av slitstark ceder och med en stomme av KL-trä. 

När bensinkungen Arne Sandberg 1967 donerade tio miljoner till storsatsningen Billingehus blev det Skövdes främsta arkitektoniska landmärke. Uppe på Billingen, Skövdes nästan 300 meter höga berg, tronar fritidsanläggningen med utsikt över skog, sjöar och vild natur. Men helt nyligen har ett antal byggnader i en annan del av naturområdet gett den modernistiska jätten konkurrens om uppmärksamheten. Det handlar om trästaden Frostaliden som skjuter upp som små stubbar på en kulle vid skogsranden. Bostadsområdet är en del av projektet »Trästad 2012«, 16 kommuners gemensamma projekt för att minska klimatpåverkan från byggsektorn.

För Jan Larsson, ansvarig arkitekt på White Arkitekter, var det självklart att deras bidrag till projektet skulle byggas av trä.

– Hållbarhet och ett hälsosamt liv slår i dag igenom i hela vår livsstil. Vi tänker på vad vi äter, hur vi reser och shoppar. Det börjar även märkas i hur vi vill bo, många uppskattar ett sunt boende i ett vackert trähus, säger Jan Larsson.

Förutom bottenplatta, källare, källarbjälklag och trapphus är de två punkthusen om åtta våningar byggda helt av trä. Övriga material valdes också, i så stor utsträckning som möjligt, ur miljö- och energisynpunkt.

Konstruktionen består av KL-trä av gran. Den starka trä­stommen gör att husets väggar bär sig själva, och arkitekterna kunde placera hål för fönster och dörrar i stort sett var som helst i byggnaden – i fasaden, inne i lägenheterna eller i hörnen. Och de kunde skapa uthängande burspråk genom att helt enkelt låta den massiva träkärnan växa ut.

– Att arbeta med KL-trä innebär en fantastisk frihet som arkitekt. Få andra material kan du hantera på det sättet. Det uppför sig snarlikt prefabricerad betong, fast väger betydligt mindre. Jag har alltid tyckt att de två industrierna skulle kunna lära mycket av varandra, men tyvärr finns det fortfarande ett visst motstånd dem emellan. Jag hoppas att det kommer att ändras, säger Jan Larsson.

Det var viktigt att allt trä, såväl interiört som exteriört, skulle synas. Samtidigt som man uppfyllde alla krav kring brand och akustik lät man i så stor utsträckning som möjligt byggnadernas trä vara exponerat. Och till stor del obehandlat. I stället installerade man sprinkler i samtliga lägenheter, så som man normalt gör i kontor.

– Med sprinkler slapp vi använda kemikalier på väggarna, dessutom råder viss osäkerhet kring hur länge en impregnering egentligen håller. Vår sprinklerlösning blev kostnadsneutral jämfört med impregnering, men med vad vi upplever som fler fördelar, säger Jan Larsson.

Fasaden är klädd med kanadensiskt cederträspån. Det vackra lapptäcket består av cirka 30x50 centimeter stora bitar som monterats för hand. Cederträspån är underhållsfritt, har lång livslängd och ett naturligt skydd mot röta. Arkitekterna lämnade fasaden helt obehandlad. 

– Ceder har flera väldigt fina egenskaper, inte minst dess utseende och hur det åldras. Vi tänkte oss husen som kottar, eller stubbar, som står här på Billingens sluttningar. Eftersom cederträspånen är monterade bit för bit så kan man också byta ut en del om det skulle behövas, i stället för att behöva riva mer än nödvändigt. 

Inledningsvis var tanken att hela fasaden skulle vara av trä, men under projekteringen av husen kom nya brand­bestämmelser som sa att större trähus ska vara obrännbara från marken och tre meter upp. Arkitekterna stod då inför valet att antingen brandskydda byggnaderna nedtill eller hitta en annan lösning. Att behandla husen hade gett en färgskiftning mellan cederträspånen, vilket man helst ville undvika. I stället valde de att montera plattor av fartygsplåt – cortenstål – längst ner. Med tiden får stålet en gråbrun, matt patina, vilket matchar hur trä grånar.

Beställare och arkitekter diskuterade länge vilket material hiss- och trapphuset skulle bestå av. På ritbordet var den stomstabiliserande kärnan av trä, men i en kompromiss landade den senare i betong. När beslutet väl togs bestämde sig Jan Larsson för att utnyttja den kontrast som uppstod mellan materialen – och göra den ännu starkare.

– Vi behöll trapphuset riktigt rått, utan att måla det eller göra någonting. Så när man öppnar trädörrarna och från det här avskalade, grova utrymmet kommer in i de ljusa, trädoftande lägenheterna med vackra ekgolv skapas en häftig kontrast. Det gör att man upplever träet ännu starkare.

Att blanda ett levande material med ett stumt innebar att man fick göra vissa anpassningar. Trä är starkast längs fibrerna och har lägre hållfasthet tvärs fibrerna – även om komprimeringen under tryck endast innebär 4–5 millimeter per våning blir det i ett åttavåningshus ett problem. Konstruktörerna löste det genom att vända på vissa klossar i bjälklagen så att de, mot betongen, står på ändträ som inte krymper nämnvärt.

Fristad Bygg var totalentreprenör i projektet och tog fram KL-träkonstruktionen. Adam Kihlberg, projektör för KL-trä i Frostaliden, tycker att samarbetet med arkitekterna fungerade bra.

– De hade en god förståelse för hela projektet och en väldigt bra tanke med placeringen av väggar, vilket gjorde att vi fick lastlinjerna på bra positioner, säger han.

Samtliga 52 lägenheter i de två husen såldes redan på ritbordet och är i dag inflyttade och klara. Jan Larsson ser med tillförsikt på framtiden när det gäller trä i större byggnader i Sverige. Han upplever att branschen de senaste åren successivt har blivit mer intresserad av trähus – inte minst mot bakgrund av den klimatdiskussion som nu pågår.

– Om vi ska nå klimatmålen finns det ingen genväg, vi måste börja bygga fler större hus i trä. Vi själva jobbar med forskningsprojekt för byggnader uppemot 22 våningar och bygger just nu ett i Skellefteå på 18 våningar. Det som behövs är fler goda exempel på vackra, kostnadseffektiva trähus, av typen vi ser i Österrike och Schweiz. För att visa att vi har råmaterialet, viljan och hantverksskickligheten.

Text Erik Bredhe

Läs de senaste artiklarna

Bli inspirerad och lär dig mer om trä

Anmäl dig här för att få information om publikationer, seminarier och Svenskt Träs nyhetsbrev Trä.

Anmäl dig för att få inspiration