Ruvande anka vakar över skogen

Haltia i Esbo, Finland av Lahdelma & Mahlamäki

En mytologisk varelse i trä tornar upp sig strax utanför den finska nationalparken Noux i närheten av Helsingfors. Med ena foten i sagans värld och den andra i modern ekoteknologi belönades naturcentret Haltia år 2013 med det finska träpriset.

BLAND FINLANDS DJUPA granskogar, mossbetäckta berg och tusentals sjöar flyter natur och myt ihop på ett unikt vis. I finsk folktro heter Gud »Ukko« och är ett slags fadersgestalt – men i övrigt endast en av naturens alla andar. Det heligaste djuret är björnen vars namn uttalas viskande för att inte störa den magiska varelsen. Även fåglar är heliga. Enligt sägnen bor de vid världens ände, flyger över natthimlen och lämnar spår i form av Vintergatans stjärnor – för att landa vid människans huvudkudde och vakta hennes själ medan hon drömmer.

Just fågelns viktiga roll inom finsk folktro var en inspiration vid utformandet av Haltia Naturcenter. Byrån Lahdelma & Mahlamäki utgick från nationaleposet Kalevalas saga om ankan som lägger ägget som innehåller världen när de ritade byggnaden. På avstånd liknar Haltia en gigantisk ruvande anka i trä som blickar ut över de finska skogarna. Tornet i ena änden påminner om fågelns hals. Inuti byggnadens stora sal kan man dessutom hitta ägget ur sagan – här i en träkonstruktion som rymmer en videoinstallation av finske konstnären Osmo Rauhaia. Sedan Haltia öppnade i maj 2013 finner man här en samling av allt det finaste av finsk natur, från skärgårdsmiljöerna i söder till Lapplands fjälltoppar, på bekvämt avstånd från närliggande Helsingfors.

– Haltia fungerar som huvudkvarter för alla Finlands naturcenter. Vi har runt fyrtio stycken i landet, alla med fokus på respektive geografiska områden. Men de flesta ligger i norra eller östra Finland och är relativt otillgängliga. Därför byggde vi Haltia. Målet är att ge besökarna en inblick i vår vackra natur och uppmana dem att gå ut och titta på den, säger Rainer Mahlamäki, ansvarig arkitekt för projektet.

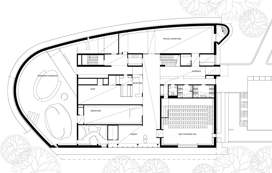
HUVUDUTSTÄLLNINGEN PÅ HALTIA består av naturfilmer, fotografier och ett animerat, ljudsatt landskapspanorama. Besökarna ges även möjlighet att uppleva känslan av en nattpromenad i den finska vildmarken samt besöka en björn som ligger i ide. Byggnaden rymmer förutom utställningar även konferenslokaler, restaurang, kafé och ett auditorium. Eftersom Haltia ligger i en 40-gradig sluttning har man förlagt ingångarna till de tre våningarna på olika platser längs med sluttningen och därmed kunnat skapa separata entréer till respektive plan. Detta ger också smarta utrymningsvägar från lokalen, något som tillsammans med ett sprinklersystem möter kraven på brandsäkerhet i en träbyggnad av den här storleken.

– Sluttningen innebar begränsningar för oss, men som arkitekt fungerar sådana ofta som en kreativ utgångspunkt. Det enda verkliga problemet med sluttningen var att vi tvingades begränsa användandet av trä något, eftersom den lutande grunden krävde betong för att stabilisera byggnaden, säger Rainer Mahlamäki.

UTÖVER BOTTENVÅNINGEN DÄR man delvis använt sig av betong är Haltia en byggnad helt i trä. Hela naturcentret består av prefabricerat korslimmat trä, KL-trä i gran som tillverkats i Österrike. Materialets styrka gör att det inte behövs några bärande pelare eller balkar. Panelerna levererades i 4 x 16-
meters stycken i varierande tjocklek vilka sedan skräddarsyddes av ett finskt företag i Pälkäne innan de anlände till byggplatsen. Byggnaden är den första i Finland som består helt och hållet – från själva konstruktionen till fasader, tak och golv – av den här typen av korslimmat trä. Haltias inspirerande användning av trä bidrog till att den förra året tilldelades »The Finnish Wood Prize«. Men att nyttja trä i den här utsträckningen har inte varit möjligt i Finland förrän på senare år.

– Vi ritade ett skogscentrum i Punkaharju i början av nittiotalet, ett slags museum som berättade om Finlands trähistoria. Ironiskt nog var vi tvungna att bygga den till stor del av betong eftersom de dåvarande reglerna kring brandsäkerhet gjorde det mycket svårt att bygga i trä. Idag är det lyckligtvis helt annorlunda.

Man använde gran bland annat för att det är ett relativt lätt material vilket skulle göra hela byggprocessen enklare. Att använda samma material genom hela byggnaden gav också Haltia ett homogent intryck. Fasadernas mörkbruna toner är resultatet av en process där man hettar upp träet under tryck – samt behandlar det med kiseldioxidånga – för att döda cellstrukturer och göra materialet mer tåligt mot sol, fukt och regn.

– Normalt brukar vi, precis som många andra arkitekter, föredra att inte behandla trä på något sätt. Helst inte ens måla det. Det är ju så fint som det är. Men tanken med den här byggnaden är att den ska se likadan ut över tiden, och därför använde vi oss av den här tekniken.

Energieffektivitet är en viktig del av Haltias filosofi. Med nydanande ekoteknologi vill man inspirera till – och vara en förebild inom – klimatsmart byggteknik. Står man uppe i utkikstornet har man lika god utsikt över sjön som över det koldioxidbindande grästaket, samt byggnadens solpaneler rakt nedanför. Haltia är i stort sett självförsörjande på värme genom solenergi och ett välutbyggt geotermiskt energisystem med elva kilometer ledningar nedborrat i berggrunden. Systemet värmer upp på vintern och kyler på sommaren. En hiss var en nödvändighet i huset, men man placerade den så att den används smartast – av såväl personal som besökare. Haltias terrass på baksidan hänger över ett stort fönsterparti på våningen under och ger därför skugga och svalka på sommaren. Genom byggnadens delvis runda fasader minskar väggarean och håller på så sätt värme inne, och kyla ute, bättre. 

HALTIA LIGGER ETT par kilometer utanför nationalparken Noux, men omgärdas ändå av finsk naturs viktigaste beståndsdelar: skog, berg och sjö. Byggnaden är utformad för att vara en naturlig del av sin omgivning. Det tar sig uttryck i såväl materialval som design. I Haltia möter strikt rektangulära former en mer fri, kurvig design vilket symboliserar människans strukturerade värld som möter naturens. Norr om byggnaden ligger berget där Haltia ger intrycket av att kura ihop sig och ta skydd mot det finska mörkret och kylan. Söderut blickar tornet ut mot sjön, det öppna landskapet, ljuset och värmen.

– Finsk design har kännetecknet att det är i dialog med dess omgivning. Harmonin känns och syns, och Haltia kan man inte flytta till något annat land, eller ens till någon annan plats i Helsingforsområdet. Att byggnaden är i trä förstärker den finska, kanske till och med den nordiska, känslan. I Finland finns en stark tradition av träbyggande som vi värnar om.

Text Erik Bredhe

Läs de senaste artiklarna

Bli inspirerad och lär dig mer om trä

Anmäl dig här för att få information om publikationer, seminarier och Svenskt Träs nyhetsbrev Trä.

Anmäl dig för att få inspiration