Nya bostäder på minuten

Just a minute i Nepal av Barberio Colella Arc

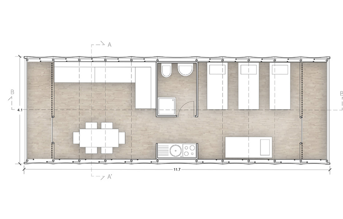
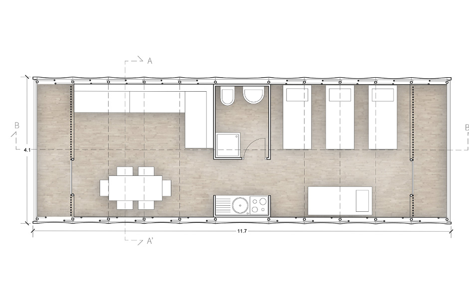
OSB-SKIVOR OCH BAMBU är råmaterial till arkitekten Barberio Colellas konceptbyggnad »Just a minute«. Att bygga den tar något längre tid än så – men inte mycket mer om man ska tro arkitekten. Huset är Colellas bidrag till att lösa situationen efter den stora jordbävningen i Nepal i april 2014, då hundratusentals människor blev hemlösa.

Bambun i den bärande stommen kan skördas lokalt. I gavlarna sitter transparent polykarbonatplast på bambureglar, medan andra änden monteras ihop med husets mittdel av OSB-skivor. En bambustomme får plats på var sida om kärnan, som hyser nödvändiga funktioner som kök och toalett. Det hela täcks med regntät plast innan konstruktionen trycks ihop som ett dragspel. Därefter transporteras den med helikopter eller lastbil till den plats där huset behövs. Sidorna av bambu dras ut igen och voilà: en tvårummare med kök! Mellanrummen mellan bambun och den regntäta plasten isoleras med ull, gamla kläder eller vad som finns till hands.«

w| instagram.com/barberio.colella.arc/

Läs de senaste artiklarna

Bli inspirerad och lär dig mer om trä

Anmäl dig här för att få information om publikationer, seminarier och Svenskt Träs nyhetsbrev Trä.

Anmäl dig för att få inspiration