Distinkt formade djurstall insmugna i landskapet

Lantbruksskolan i Güssing i Güssing, Österrike av Pichler & Traupmann

Komplext regelverk gav distinkt formade djurstall insmugna i landskapet med hållbar konstruktion

Länge var österrikiska Güssing en halvt bortglömd utpost inte långt från järnridåns rostande taggtrådsstängsel. Förändringen kom i mitten av 1990-talet när staden fick svårt att betala sina elräkningar och tvingades se över sin energikonsumtion. Snart ställde man om till alternativ, grön energi och sänkte som första region inom EU sina koldioxidutsläpp med 90 procent. De närmaste åren strömmade internationella investerare och bönder till den lilla gröna staden för att få en glimt av framtiden. I dag står en skylt vid sidan av vägen, vid infarten till staden: »Eco-Energy Land«.

När lantbruksskolan i staden för några år sedan skulle ersättas med en ny var det självklart att även den skulle ha en hållbar profil. Inte minst skulle alla djurstall moderniseras och byggas enligt högt ställda biodynamiska riktlinjer. När Pichler & Traupmann Architecten fick uppdraget att rita skolan var de inte helt beredda på hur komplicerat det faktiskt skulle bli.

– Vår allra första tanke när vi skulle börja utforma stallen var att det borde vara ganska enkelt. Men det är svårare än man tror. De ska följa ett komplext regelverk som är olika för olika djur. Men vi tycker om utmaningar, och genom en kreativ lösning lyckades vi möta samtliga krav, säger Johann Traupmann på Pichler & Traupmann Architecten.

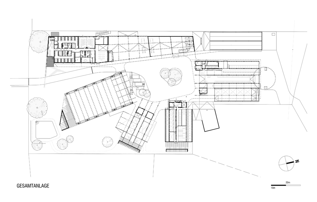
Inför projektet utlystes en arkitekttävling, men medan de flesta skapade konservativa lösningar med stallarna uppställda bredvid varandra gjorde Pichler & Traupmann någonting helt annorlunda – vilket fångade juryns intresse. Innergården har placerats centralt och runt denna skjuter skolans olika delar ut likt fingrar på en hand. Från gården har man god översikt samt enkel tillgång till såväl stallar som undervisningssal. Genom det här upplägget kan personal och elever utföra sitt dagliga arbete på ett effektivt sätt. Utformningen är praktisk sett till arbetsflödet, men den stora inspirationen fick arkitekterna från beställarens krav på skolans nya, hållbara profil.

– Modern, biodynamisk djurhållning innebär krav på god tillgång till frisk luft och solljus samt en stark koppling till omgivningen. Genom att skapa en byggnad med den här fingerformen får man stora utrymmen mellan stallarna där luft och solljus fritt kan flöda fram. Och kopplingen till omgivningen blir ännu tydligare, säger Johann Traupmann.

Sett från ovan är det svårt att urskilja skolan ute på fältet. Samtliga delar har försetts med sedumtak vilket gör att den mest liknar ett antal mindre kullar. Från flera delar av staden, inte minst från det välbesökta slottet uppe på det intilliggande berget, ser man ner mot skolområdet. För arkitekterna var det viktigt att byggnaden blev en del av landskapet, att man inte störde utsikten.

– Vår idé var att skära ut delar av marken, lyfta upp dem och bygga därunder. I stor utsträckning var projektet lika mycket landskapsdesign som arkitektur, säger Johann Traupmann.

Utöver att fungera som ett slags kamouflage var takets viktigaste funktion att isolera byggnaden på ett energieffektivt vis. Men takets växtlighet leder även till besparingar när det gäller dagvattenhantering. En annan vinst är att taket som flödar fram över samtliga byggnader även ger ett bra skydd för väder och vind. Regniga dagar kan personal och elever ta sig runt mellan de olika byggnaderna utan att bli blöta. 

Takkonstruktionen består av OSB-skivor som vilar på ett primär- och sekundärbärverk av limträ med varierande dimension, beroende på vilka krafter de utsätts för. Hela takkonstruktionen står på V-formade pelarpar av limträ med förband av stål ovanpå en betonggrund. Limträet är tillverkat av gran från regionen. Att arkitekterna använde trä i så stor utsträckning hade flera orsaker. Den gamla skolan var i tegel och de ville skapa något annorlunda och ljusare. Att jordbruksbyggnader traditionellt sett är i trä, samt att skolan har en biodynamisk inriktning var starkt bidragande orsaker till att valet föll på trä. 

– När man bygger något där djurens välmående är så centralt, där allt de äter växer naturligt på åkrarna, blir det naturligt att även byggnaden använder material som växer i naturen. Det är verklig hållbarhet. Om byggnaden en dag ska återvinnas så kan man också göra det på ett väldigt enkelt vis, säger Johann Traupmann.

träindustrin i Österrike är en av landets absolut viktigaste näringsgrenar och sysselsätter runt 300 000 personer. Även om Pichler & Traupmann inte är några utpräglade träspecialister så märker de en stark vilja att bredda användningsområdet för materialet. Detta är något som kommer ur både ett hållbarhetstänk och nya tekniker som gör det möjligt att bygga större och mer komplext i trä.

– Sågverksindustrin är starkt kopplad till vår ekonomi, därför finns det ett intresse av att hitta fler sätt att använda den på. Det är spännande att se hur materialets kvaliteter utnyttjas allt mer, i allt högre byggnader. Men samtidigt ställer trä krav på arkitekten. Vi lärde oss till exempel under projektets gång att materialet kräver mycket noggrann planering för att användas, säger Johann Traupmann.

Såväl elever som stadens invånare uppskattar den nya skolan. Ett ridhus är öppet för allmänheten att rida i och här hålls även tävlingar i dressyr. Eleverna tycker om de öppna, ljusa ytorna i kombination med den varma känslan i träkonstruktionen.

– Byggnaden är pedagogisk i sig själv, man kan se och förstå hur allt är uppbyggt. De gånger jag besöker skolan brukar eleverna säga att de inte trodde att stall kunde se ut så här. Jag är själv från landet och från min uppväxt minns jag mörka, trånga stall med dålig luftkonditionering. Därför var det fantastiskt att få bygga något som det här. Djuren trivs fantastiskt bra, vi har låtit dem komma ännu närmare sin naturliga miljö, säger Johann Traupmann.

Text Erik Bredhe 

 

Läs de senaste artiklarna

Bli inspirerad och lär dig mer om trä

Anmäl dig här för att få information om publikationer, seminarier och Svenskt Träs nyhetsbrev Trä.

Anmäl dig för att få inspiration