Distinkt form skapar nya värden

Finansparken i Stavanger, Norge av Helen & Hard/SAAHA

Förutom rikligt med olja är Stavanger även känd för sin välbevarade trähusbebyggelse från 1700-talets slut. Det nya bankhuvudkontoret i den norska kuststaden bygger vidare på träbyggnadstraditionen och visar ett spännande samspel mellan innovativ gestaltning och konstruktion. Men också att man kan bygga både stort och solitt av trä.

Under de senaste åren har mycket av norskt träbyggande handlat om att komma först, vara störst och att sträcka sig högst mot himlen. Det är en trend som representeras av byggnader som Treet i Bergen, som under en kort period var världens högsta träbyggnad, liksom Mjøstårnet i Brumunddal, som med sina 85,4 meter är den nuvarande rekordhållaren. Nu har Finansparken i Stavanger, som invigdes i november 2019, tagit plats som Europas största kontorsbyggnad av trä.  

Ledningen för Sparebank 1 SR-Bank hade länge haft tankar på att samla sin verksamhet i ett nytt huvudkontor när man 2013 utlyste en arkitekttävling. I tävlingsprogrammet uttryckte banken en önskan om en byggnad med höga arkitektoniska och funktionella kvaliteter, med stor flexibilitet, god driftsekonomi och innovativa lösningar kring rumslighet och arbetsmiljö. Kort sagt en signaturbyggnad som banken och dess medarbetare skulle kunna vara stolta över. Det blev förslaget från det lokala arkitektkontoret Helen & Hard i samarbete med Oslobaserade SAAHA som tog hem segern i konkurrens med 17 andra kandidater.

Att bankens nya huvudkontor skulle byggas av trä var dock inte självklart. För att övertyga sin uppdragsgivare tog arkitekterna med sig bankens ledning på en resa till Tyskland, Österrike och Schweiz för att visa goda exempel. Mediekoncernen Tamedias huvudkontor i Zürich, ritat av Shigeru Ban, var en av många inspirerande ögonöppnare. Det var också den modell som byggdes i skala 1:1 och som tydliggjorde träets taktila värden och vilka möjligheter som finns när det gäller både gestaltning och konstruktion i trä. 

– Trä är ett bra miljöval som känns modernt och framtidsinriktat och ligger i linje med bankens värderingar. Vi ville också att vårt nya huvudkontor skulle smälta in i Stavangers befintliga trähusbebyggelse. Dessutom bidrar trä till en varm, funktionell och trivsam miljö som våra kunder och medarbetare ska kunna mötas och vistas i, säger Arne Austreid, vd Sparebank 1 SR-Bank. 

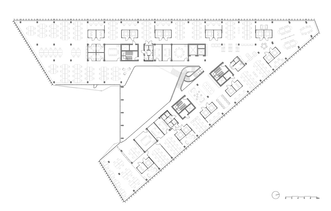
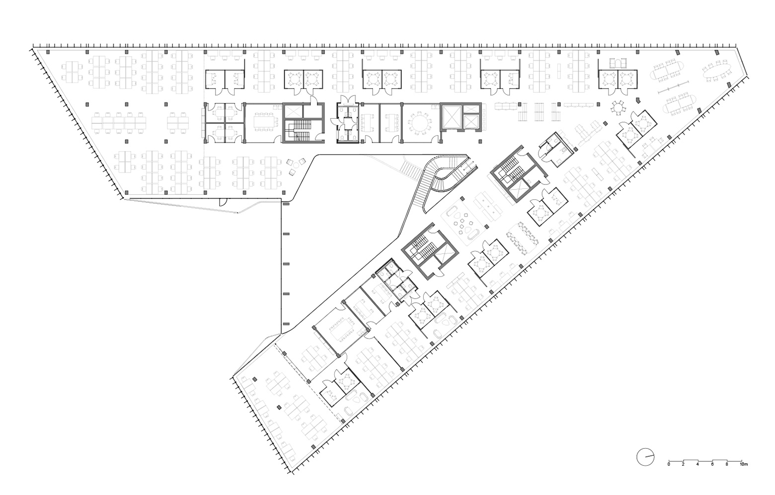
Finansparken ligger inkilad på en i det närmaste triangulär tomt i området Bjergsted strax norr om Stavanger centrum. Tomten fungerade tidigare som parkeringsplats och gränsar mot stadens gamla trähusbebyggelse. Kilformen, i både plan och höjd, har skapat en byggnad som ändrar karaktär och skala till det omgivande stadslandskapet. Helen & Hard inledde ett samarbete med SAAHA, och huvudkonceptet utvecklades i nära samarbete redan under tävlings- och förprojektfasen. Fördelningen mellan fasad (SAAHA) och interiör (Helen & Hard) bestämdes först i detaljfasen. 

– Till grund för arkitekturen ligger kontrasterna mellan ett väldefinierat och stramt yttre och ett mjukare och mer organiskt inre. Resultatet är långt ifrån diskret, men smälter ändå in fint i den befintliga bebyggelsen, säger Njål Undheim, senior arkitekt på Helen & Hard.

Byggnaden vilar på en bärande konstruktion tillverkad av både platsgjuten och prefabricerad betong. Utrymmet under mark omfattar tre våningar som rymmer ett parkeringsgarage för 200 bilar och diverse teknikutrymmen. Betong har även använts i de tre centralt placerade trapphusen och i hisschaktet som bidrar till att stabilisera byggnaden.

Den komplexa träkonstruktionen är ett precisionsarbete signerat Creation Holz och Hermann Blumer. Den är uppbyggd som ett ramverk av prefabricerade balkar och pelare av limträ samt med förstärkning av fanerträbalkar i bokträ som förmonterats och rests på plats i Stavanger. I stället för stålförband har man valt en speciell infästning i form av en 80 millimeter tjock träplugg i det hårdare träslaget bok. Allt som allt har 3 500 bokpluggar gått åt till konstruktionen. KL-trä har använts i bjälklaget för att stabilisera byggnaden genom skivverkan. Montaget har genomförts sektionsvis och i höjdled för att snabbt kunna täcka del för del.

– En av de största utmaningarna har varit att bygga fukt­säkert utan väderskydd i en av Norges mest nederbördsrika städer. Allt limträ har därför levererats och monterats inplastat, berättar Thor Olav Solbjør, arkitekt och vd på SAAHA.

Entréplanet har dubbel takhöjd med färre pelare i syfte att skapa rymd. De pelare och balkar som använts i de första tre våningarna är tillverkade av fanerträ, LVL, i form av så kallat Baubuche från tyska Pollmeier. De har i huvudsak levererat 40 millimeters bokfanerskivor till Moelven Limtre som limmat och bearbetat materialet slutligt. Kvistfritt faner har använts i det yttersta skiktet på alla synliga ytor. Att bok är tyngre och starkare ger materialet både mycket hög drag-, tryck- och böjhållfasthet vilket gör att det går att bygga smäckrare än med traditionellt limträ av gran. Möjligheten att välja en extra hög ytkvalitetet gör även Baubuche till ett bra val i synliga konstruktionselement. 

I övriga våningar har man använt lokalt producerat limträ som bearbetats av Moelven Limtre. Leveranserna till Finansparken är företagets i särklass största sedan Gardermoens flygplats byggdes i Oslo 1998. CNC-bearbetningen av elementen har sysselsatt två fulla skift under ett års tid. Allt som allt har fabriken i Moelv levererat 1 900 kubikmeter KL-trä, 1 100 kubikmeter limträ och 600 kubikmeter bokfanerträ. De synliga träytorna har putsats för hand i fabriken för att få högsta möjliga finish.  

– Väggar och tak är sammanfogade med 67 000 skruvar utifrån 750 montageritningar. Konstruktionen har ställt mycket höga krav på de prefabricerade limträelementen. Håltagningarna har utförts med en precision på en tiondels millimeter, berättar Moelvens projektutvecklare och seniorrådgivare Åge Holmestad. 

Den södra och lägsta delen av Finansparken vetter mot stadens gamla trähusbebyggelse som bara ligger ett stenkast bort. Härifrån reser sig byggnaden mot norr med upp till sju våningars höjd. Kronan på verket är bankens representationslokaler med hänförande utsikt över fjorden och de omgivande fjällen.

– Våra ledord har varit transparens och öppenhet. Genom att ge Finansparken en heltäckande glasfasad öppnar vi byggnaden mot omvärlden, säger Thor Olav Solbjør.

Transparensen förstärks genom en passiv solavskärmning i form av två centimeter tjocka vertikala glaslameller. Dessa levandegör fasaden och ger ett uttryck som förändras i takt med väder och vind. Lamellerna är uppbyggda av ett klart och ett bronsfärgat skikt med ett mellanliggande lamineringsskikt som belagts med solfilm. Allt som allt har fem kilometer glaslameller använts till fasaderna.

Atriet som möter både medarbetare och besökare till vänster om huvudentrén utgör byggnadens hjärta mot vilken alla sociala zoner vänder sig. Det bjuder på en varm, öppen yta som fångar in dagsljuset via en helglasad fasad och ett glastak som vilar på ett diagonalt raster av limträ. Glaset är tillverkat av Okalux, och trots sin höga solskyddseffekt släpper det ändå in ett mjukt och fint ljus och förhindrar skarpa skuggor vid stark sol. I atriet hänger även konstverket Flocking lights over epic waters av Joachim Sauter. Konstverket består av cylinderformade armaturer som kommunicerar digitalt med bojar ute i Byfjorden och rör sig i takt med vågornas rörelser. 

Det är mycket som lätt hamnar i blickfånget i Finansparken, men kanske allra mest den skulpturala trappan som tar avstamp i huvudentréns öppna atrium och slingrar sig vidare upp i byggnaden. De dubbelkrökta limträbalkarna är tillverkade av Hess Timber i Frankfurt som är ett av få företag som kunnat bemästra den komplexa geometrin. 

Trots projektets komplexitet vittnar alla involverade om ett mycket gott samarbete. Njål Undheim menar att det finns många bidragande faktorer bakom detta: En byggherre som varit på det klara med vad man velat uppnå, professionell projektledning, duktiga underentreprenörer och det faktum att Finansparken är ett referensprojekt som alla varit stolta över att ha varit delaktiga i.

Sparebank 1 SR-Bank flyttade in i sitt nya kontor den 29 november förra året, vilket var på dagen 180 år efter att man beviljades banktillstånd med ett startkapital på 224 norska kronor, eller 56 specialdaler som det hette på den tiden. Nu siktar banken framåt där det nya huvudkontoret ska fungera som ett värdeskapande kompetenscenter för både kunder och medarbetare. 

– Sedan banken grundades i Egersund för 180 år sedan har vi aldrig haft ett ordentligt huvudkontor. Nu har vi fått en signaturbyggnad som vi förväntar oss ska stå minst lika många år framöver, säger Arne Austreid. 

text Katarina Brandt

Läs de senaste artiklarna

Bli inspirerad och lär dig mer om trä

Anmäl dig här för att få information om publikationer, seminarier och Svenskt Träs nyhetsbrev Trä.

Anmäl dig för att få inspiration