Klimatsmart för idrott och kultur

CIK-hallen i Knivsta, Sverige av Norconsult

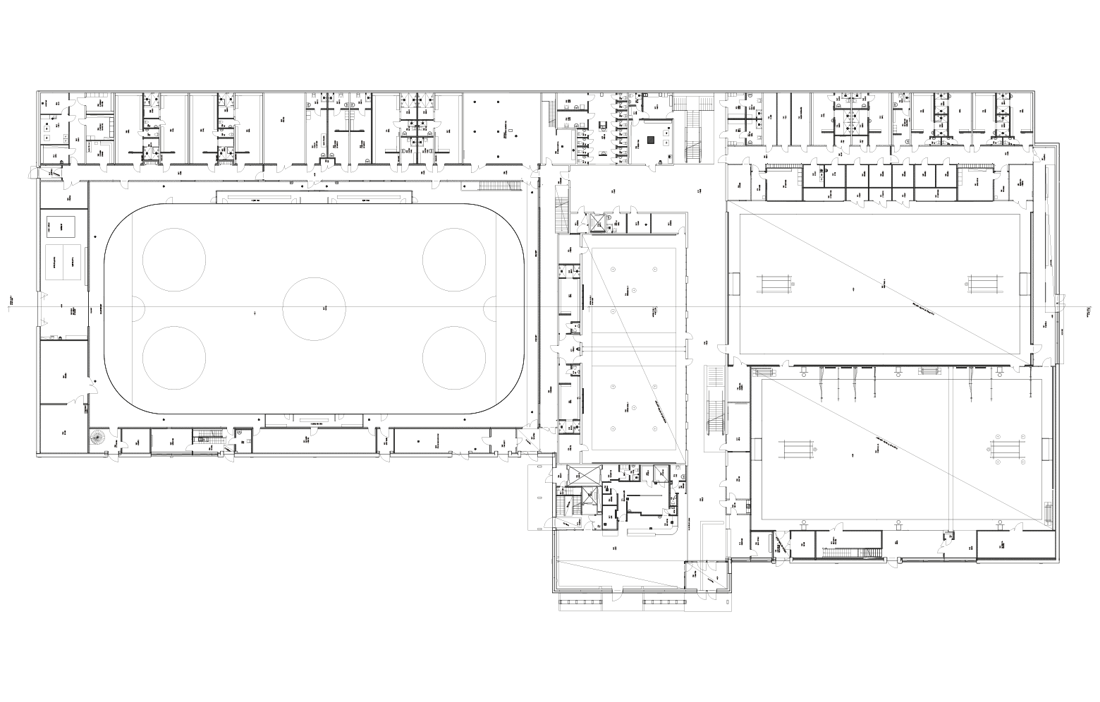
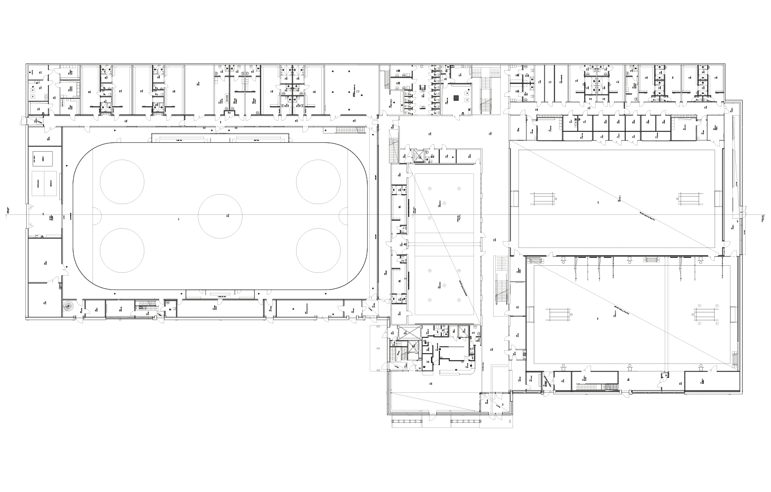
Knivsta växte fram som ett stationssamhälle när järnvägen mellan Stockholm och Uppsala öppnade 1866, och under åren har samhället förvandlats till en modern tätort. Nyligen planerade man här för en ny sporthall, kompletterad med en isrink utomhus. I stället utvecklades projektet till ett aktivitetshus. Nybyggda Centrum för idrott och kultur, CIK, är med sina drygt 15 000 kvadratmeter en av Sveriges största träbyggnader och landets största passivhus.

Den bärande tanken i förverkligandet av CIK har varit att kombinera lokaler för både idrott och kultur i en och samma byggnad och på så sätt skapa förutsättningar för nya möten mellan människor och intressen. Det nio meter långa konstverket Halvlek utanför entrén, där ena sidan är en pensel med färg och den andra en bandyklubba som vilar på en bandyboll, beskriver på ett tydligt sätt denna strävan. Hur viktigt det är att besökarna ska kunna röra sig obehindrat mellan både penseldrag och slagskott.

Till grund för utformningen av CIK ligger Knivsta kommuns höga krav på klimatsmart byggande. Sedan några år tillbaka byggs alla nya fastigheter som passivhus. Det är ett sätt för det kommunala bostadsbolaget att omsätta det politiska beslutet att vara en hållbar föregångskommun i praktisk handling.

– Knivsta är Sveriges mest passivhustäta kommun, enligt den internationella definitionen av begreppet. Det innebär att vi får en betydligt lägre driftskostnad för kommunens verksamhetslokaler än vid traditionell byggteknik, säger Tomas Lindgren, projektchef på det kommunala bolaget Kommunfastigheter i Knivsta.

CIK invigdes i december 2019 och består av två fullstora sporthallar, en delbar kampsportslokal, scenkonstlokal, ishall och gemensamma kommunikationsytor samt tre våningar med kontor för uthyrning. Projektet är en samverkansentreprenad där byggentreprenadföretaget HMB agerat huvudentreprenör och Norconsult varit beställarens arkitekt.

– Vi började rita på olika förslag redan 2012, och det vi ser nu är en produkt som vuxit fram successivt under resans gång. Till en början var beställningen en sporthall med en utvändig isyta. Sedan dess har vi samarbetat på ett sätt som gjort att vi hela tiden har kunnat utveckla och göra förbättringar. Det är en upphandlingsmodell som jag skulle vilja se i fler projekt, säger Dan Johansson, uppdragsledande arkitekt på Norconsult.

Ursprungsidén har varit att använda så mycket trä som möjligt och betong endast i bottenplattan. Olika omständigheter, som till exempel vibrationer från den närliggande järnvägen och höga krav på ljudisolering, gjorde att det även blev betongväggar i hela bottenvåningen och i bjälklaget under scenkonstlokalen.

– Vi gör våra val utifrån var materialets egenskaper kommer bäst till sin rätt, men arbetar efter principen att prioritera träbaserade lösningar i så stor utsträckning som möjligt, säger Julia Hjortmyr Grabe, handläggande arkitekt på Norconsult. 

Utöver att CIK är mycket energisnål och ger minimalt med koldioxidutsläpp, bidrar passivhustekniken och valet av trä till ett inomhusklimat som upplevs som behagligt året runt. Betong används i mötet med marken i grundläggning och entréplan samt som tungt akustiskt isolerande bjälklag under scenkonstlokalen. Trästommen av limträ och väggarna av KL-trä har byggts ovanpå, och högst upp tronar de spektakulära takstolarna av limträ vars långa spännvidder är mest framträdande i ishallen.

Den underhållsfria fasaden består av klinkbyggd träpanel (stående panel monterad med överlapp) av värmebehandlad och brandimpregnerad furu som med tiden kommer att skifta färg från ljust brun till grå. Taket är belagt med ett luftrenande ytskikt som neutraliserar luftför­oreningar i form av kväveoxidpartiklar från fordon och industri som är skadliga för människa och miljö. Ytskiktet har en mineralbaserad beläggning med skiffer innehållande titandioxid som fungerar likt en katalysator. Med hjälp av uv-ljus från solen förvandlas föroreningarna till nitrat som därefter sköljs ner från taket när det regnar och tas upp av växter och träd. Taket ska bryta ner luftföroreningarna under de 50 år som är den beräknade livslängden. Eftersom titan­oxiden finns i skiffern torkar den inte ut eller tvättas bort över tid. Det enda som minskar takets förmåga att bryta ner partiklar är brist på solljus eller att till exempel löv hindrar partiklarna från att landa på taket.

Stor vikt har lagts vid att skapa ett naturligt flöde i anläggningen som möjliggör både spontana och planerade möten mellan besökarna. Via entrén leds man in i byggnaden, förbi kampsportshallen – som bjuder på full insyn via stora fönster – och vidare upp till foajén via en teatralisk trappa i limträ. Foajén är ett pampigt rum och en central mötesplats för alla som besöker CIK. Terrazzogolvet är en del av husets konstnärliga gestaltning, liksom konstverket Moves som pryder luftrummet. Foajén bjuder också på utsikt över den södra väggens relief i plywood som sträcker sig som en axel genom hela byggnaden. Reliefen fungerar både som konstverk och akustikvägg och skiftar i 70 olika nyanser som återkopplar till byggnadens skiftande funktioner – från sporthallarnas ljusa trä till scenkonstlokalens svarta interiör.

– I foajén kan man se alla byggnadstekniker på en och samma gång. Pelarstommen i limträ med stabiliserande KL-träelement från Martinsons och den vackra studiopanelen från Moelven. Det är ett intressant rum där man kan läsa av hur huset är byggt, säger Dan Johansson.

Ishallen i CIK är förmodligen världens första som byggts enligt passivhusteknik. En nyckelfaktor i detta är den överskottsvärme som genereras när man kyler isen och som i sin tur används för att värma huset. Kondenspunkten i ishallar gör att det finns stora fördelar med att använda massiva väggar av trä som har bra hygroskopiska egenskaper och kan buffra fukt.

– Vi brukar säga att vi har solis eftersom det är anläggningens 1 500 kvadratmeter solceller som bland annat driver kylmaskinerna som producerar is, säger Tomas Lindgren.

I ishallen har de drygt 40 meter långa takstolarna fått underliggande dragstag i stål. En smart lösning som tagits fram av TK Botnias konstruktörer och möjliggjort betydligt smäckrare takbalkar.

– De duktiga konstruktörerna har på många sätt lagt grunden till vårt träkunnande. Även om de har haft fokus på materialoptimering så har de varit väldigt lyhörda för våra önskemål, säger Julia Hjortmyr Grabe.

Vägg i vägg med ishallen ligger scenkonstlokalen vars gestaltning har genomförts i nära samarbete mellan Norconsults arkitekter och akustiker. Här har arkitekterna formgivit lokalen utifrån akustikernas krav på att få en reglerbar sals­akustik som fungerar för all slags scenkonst – musik, teater, tal och konferenser.

– De akustiska utmaningarna i CIK har ofta handlat om samspelet mellan byggnadens olika funktioner. Det ställs ju lite extra höga krav på ljudisolering när en ishall och scenkonstlokal ska dela vägg. I CIK har vi fått god hjälp av takets fackverkskonstruktion som bidrar till en väldigt skön akustik. Vi upptäckte också att en fördel med väggar i KL-trä är att de är betydligt mycket tyngre och absorberar ljud i mindre grad än en lätt trävägg, säger Gunilla Sundin, seniorkonsult akustik på Norconsult.

Scenkonstlokalen har försetts med en installationsvägg som är klädd med ett akustiskt transparent ytskikt. Väggen ger på köpet nyttig diffusion, eftersom både stomme och installationer i väggen tjänstgör som diffusorer. Efterklangen kan också varieras beroende på produktion med hjälp av de akustikgardiner som finns gömda i väggen. Att scenöppningen bildas helt av tyger, och i synnerhet av ett öppningsbart tygsegment ovan scenöppningen, bidrar också till den justerbara efterklangen. Själva scenen har ett speldjup på 9,2 meter och en bredd på 18 meter och är kategoriserad som »Blå scen+«, vilket är Riksteaterns tekniska bedömning av lokalen sett till professionell yrkesutövning på turné.

– Jag uppskattar att akustiken skiljer sig åt i CIK:s olika rum. Ta bara foajén som är oerhört klangig. Det skapar en både pampig och högtidlig känsla som jag tycker ska finnas i en ståtlig byggnad som CIK, säger Gunilla Sundin.

CIK visar upp många goda exempel på informerad design, vilket innebär att man aktivt arbetat för att få in flera perspektiv i valet av lösningar. Lösningarna tas fram genom tvärfackligt samarbete, där de skilda perspektiven bidrar till byggda resultat som löser flera krav och problemställningar på samma gång. Ett exempel är det diffuserande konstverket i foajén. Ett annat är sporthallarnas läktarplatser där armstöden bär upp bänkarna av limträ med infästning på rätt ställe i bakomliggande träläktare. Ett tredje fint exempel är de dubbla KL-träväggarna som bär läktaren, varav den yttre följer med upp och blir ett räcke. Samma vägg fungerar alltså som bollplank, ljudisolering, brandcellsgräns, bärande konstruktion och fallskydd.

– Det har varit inspirerande att jobba med ett så genomgripande projekt, och vi hoppas att det ska få stor betydelse för Knivstaborna, säger Dan Johansson.

text Katarina Brandt

Läs de senaste artiklarna

Bli inspirerad och lär dig mer om trä

Anmäl dig här för att få information om publikationer, seminarier och Svenskt Träs nyhetsbrev Trä.

Anmäl dig för att få inspiration