Loftgångar för gemenskap

Svavelstickan i Norrköping, Sverige av Marge Arkitekter

Flerbostadshuset Svavelstickan i Norrköping har både stomme och synliga detaljer i trä. Huset består av två kroppar som knyts ihop av mellanliggande loftgångar i trä. På så vis har man kunnat dra nytta av platsens besvärliga förutsättningar och skapa ett alldeles eget uttryck.

Under några år på 1950-talet växte den gröna stadsdelen Ljura upp strax söder om Norrköpings centrum. Bebyggelsen präglades av hus i tegel och puts med omgivande gröna gårdar och närheten till Ljuraparken med fina rekreationsmöjligheter. Under senare år har området förtätats, och tomten där Svavelstickan nu står var den sista att bebyggas.

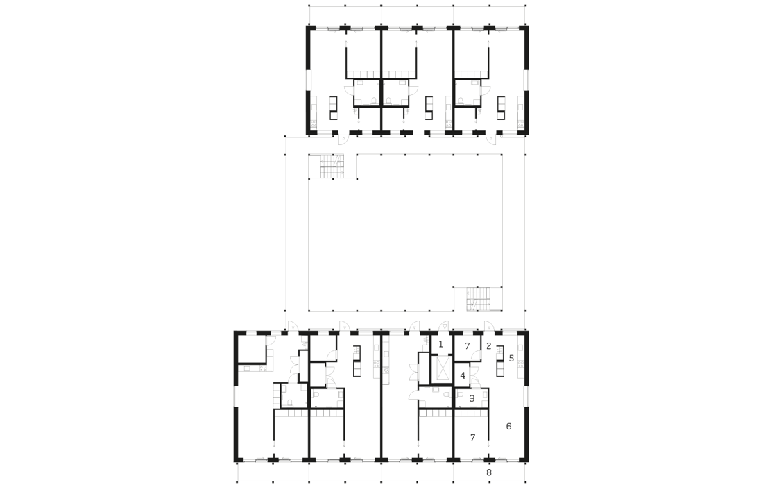
– Till en början handlade det om att göra det mesta av tomtens svåra förutsättningar. Mitt på tomten fanns centrala ledningar med el och fjärrvärme som skulle bli alldeles för dyra att flytta. Det gällde alltså att kunna bygga utan att gräva upp själva mittenpartiet. Vår lösning blev att göra två fristående husvolymer och binda ihop dem med loftgångsbroar, berättar Erik Hökby som är ansvarig arkitekt för projektet hos Marge Arkitekter.

En annan viktig förutsättning var att fastighetsutvecklaren och beställaren Conlega ville ha en så öppen lösning som möjligt när det gällde stomme och konstruktionsprinciper.

– Med en putsad fasad kunde vi ge konstruktören stort utrymme och samtidigt knyta an till den befintliga 50-tals­arkitekturen i skala och material. Men vi ville också förankra husen i nutiden genom balkonger, loftgångar och trapphus i kl-trä som tillför något nytt till området, säger Erik Hökby.

Hans förslag med genomgående detaljer av KL-trä i fasaden var en viktig ingrediens som även tilltalade Conlega. Att det skulle vara trä även i stommen avgjordes först senare.

– Totalentreprenören valde helt enkelt det som var mest ekonomiskt gynnsamt. För min del tycker jag att det var intressant, säger Erik Hökby.

Sammantaget består de båda husvolymerna av 27 lägenheter, med etagevåningar i bottenplanen. Intrycket av trä är tydligt, med balkonger av KL-trä som löper längs med hela den yttre fasaden. På fasaderna mot gården möts man av motsvarande loftgångar av KL-trä. Här finns också samtliga entréer. I markplanet bidrar en lätt upphöjning till att skapa ett privat utrymme kring de entréer som finns här. Övriga nås via loftgångarna och de yttre trapphusen vid gavlarna.

– Det har varit spännande att jobba med loftgångshus, som tidigare kanske haft en viss klang av miljonprogram. Här har vi jobbat med material som är mer taktilt och varmt och i en skala som är mycket mindre. För att komma till sin lägenhet behöver man röra sig förbi högst tre andra lägenheter. Det gör att allt blir mycket mer familjärt och att man får en umgängeszon där man kan lära känna sina grannar, snarare än en transportsträcka, säger Erik Hökby.

Tillsammans bildar loftgångarna och loftgångsbroarna en kvadrat med fin utblick över gården från de två övre planen. I markplan är gården öppen, vilket kopplar ihop dess grönytor med den omgivande kvartersparken.

– En extra kvalitet som vi faktiskt inte hade tänkt på innan var att vi skulle få ett bostadshus med ett utsiktstorn. Den panoramautsikt man kan få här kan man inte få någon annanstans i Ljura, säger Erik Hökby.

Samtliga trädetaljer är levererade av Martinsons, utom den prefabricerade stommen av limträ som levererats av estländska Timbeco. I princip gäller att alla pelare och balkar är konstruerade av limträ och att övriga detaljer i balkonger, loftgångar och trapphus är av KL-trä. Det gäller även golven, förutom trappstegen i trapphuset som är av limträ. Erik Hökby är nöjd med den mjuka ljudbild som träet skapar i trappan och loftgångarna.

– Det massiva träet absorberar ljudet på ett sätt som gör det väldigt dämpat. Med stål hade vi fått ett mycket mer burkigt ljud. Invändigt hade vi en akustiker med oss i bygghandlingsskedet som tagit fram en avancerad lösning för att hantera stomljudet i träkonstruktionen mellan lägenheterna.

En utmaning med att välja trägolv utomhus var dock hur man skulle göra med halkskyddet. Befintliga lösningar saknades, vilket gjorde att man vände sig till en leverantör av halkskyddsremsor inom industrin. Med hjälp av remsorna kunde man samtidigt lösa nödvändiga kontrastmarkeringar i trappan.

För att stå emot fukt bättre har alla yttre trädetaljer behandlats med en kiselbaserad lösning som tillåter träet att gråna naturligt efter hand. På brandskyddssidan har man bland annat använt sig av olika tekniska lösningar som svällband och brandskyddsmålad panel som spikats upp i taken.

– När det gäller träet går det relativt enkelt att dimensionera upp för att kunna stå emot en brand i 30 eller 60 minuter. Men alla stålinfästningar är mycket känsligare och måste skyddas. Många infästningar består av försänkta skruvar och skyddas av träet. I trapphusen har vi adderat med små reglar på vissa ställen. De infästningsplåtar som förekommer där har brandskyddsmålats på plats, berättar Mathias Kihlstrand, konstruktör på Structor som ansvarat för konstruktionen i loftgångar, balkonger och trapphus.

Tillsammans med arkitekten är det också han som har tagit fram lösningen med den stabiliserande fackverkskonstruktionen i trapphusen. Till en början var planen att använda dolda infästningar i kryssen mellan pelare och stag. Men eftersom man inte kunde hitta lämplig självborrande dymling för utomhusbruk visade det sig bli alltför omfattande jobb om man skulle förborra och knacka in dem på plats.

– Det gjorde att vi i stället valde utanpåliggande plåtar med genomgående bult, som blev som en dekoration i sig, säger Mathias Kihlstrand.

Som stabiliserande åtgärd gjorde man också en viss förstärkning i trästommen bakom putsen. Där har pelarna sedan fästs med 250 millimeter långa skruvar. Motsvarande förstärkning gjordes även på andra sidan fasaden för infästning av balkongerna.

Både Mathias Kihlstrand och Erik Hökby är nöjda med slutresultatet och de många skräddarsydda lösningarna som sammantaget skapat husets unika uttryck.

– Det här är ju ett ganska litet projekt i utkanten av Norrköping, på en marknad som är ganska pressad. Att med de premisserna kunna få till de här speciallösningarna och få det att bli så bra känns väldigt roligt, säger Erik Hökby.

text Sara Bergqvist

Läs de senaste artiklarna

Bli inspirerad och lär dig mer om trä

Anmäl dig här för att få information om publikationer, seminarier och Svenskt Träs nyhetsbrev Trä.

Anmäl dig för att få inspiration